故障现象:一辆2007年款一汽-大众迈腾1.8TFSI轿车,据用户反映,该车中高速行驶时急加速无力,车速达到120 km/h以上时,再加速时发动机就会因动力不足而出现抖动现象。

图1
检查分析:首先使用故障诊断仪VAS5052A进行检测,发动机控制单元内存储故障码08213 ,含义是“进气歧管流道位置传感器/开关电路范围/性能”。迈腾轿车进气歧管内设置了由真空机械阀调节的进气歧管风板(图1),风板在进气歧管内偏心布置,发动机控制单元通过电磁阀N316实现对真空机械阀开或关2种位置的调节。在发动机怠速和中小负荷时风板关闭,在加速工况中转速升高到设定值时,进气风板受控完全打开,由此改善了气体流动性,以适应高速功率需求。与大众系列其他带有进气风板调节功能的发动机不同,迈腾轿车的进气风板的位置还可以通过与风板轴另一端连动的位置传感器G233识别,用于向发动机控制单元反馈进气风板的执行状态。
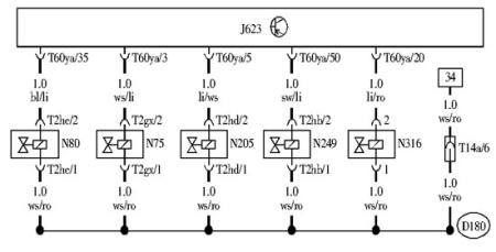
结合该车存储的故障码,笔者分析可能存在的故障点包括:进气歧管风板控制线路故障(包括N316和发动机控制单元之间的线路)、进气歧管风板操纵执行机构故障(包括真空膜盒、真空源)以及风板拉杆机械机构、进气歧管风板位置传感器G233本身信号不稳定故障。鉴于风板位置传感器G233位于进气歧管的左下方,不易拆装,本着由简到繁的原则,首先对进气风板的控制执行部件电磁阀N316进行测量,实测其电阻为正常的31.3 Ω。根据电磁阀N316的控制电路图(图2),N316的连接插头共有2个端子,其中端子2(紫/红色线)连接发动机控制单元J623的T60ya/20脚,是N316的控制端子;端子1(白/红色线)连接主继电器,是N316的供电端子。通过VAS5051的执行元件自诊断功能驱动N316,可以听到N316发出一定频率的正常响应的“咔嗒”声,这说明N316和其控制线路正常。

图2
接下来测试进气歧管风板机械结构的执行状态。使发动机原地急加速到3 000 r/min以上,观察进气歧管风板机械操纵杆并无明显拉伸动作,这说明真空膜盒没有响应。真空膜盒的真空源取自凸轮轴驱动的机械真空泵,检查确定真空管有稳定的真空源供给,将真空源连接管直接引至真空膜盒的接入口,操纵拉杆产生了回拉动作,这说明风板机械操纵机构也无异常状态,通过以上测试,可以将故障点集中在电磁阀N316的控制信号上,为此需要进一步对发动机控制单元的控制特性进行验证,因为之前用故障诊断仪的执行元件自诊断功能确定了N316的控制线路正常,但并不能说明发动机控制单元发出的控制指令信号是正常的。正如前面所讲,发动机控制单元的T60ya/20脚接N316的控制端子,在加速工况下控制电磁阀N316的2号脚在发动机控制单元内部接地,以此来满足采用短进气道适应功率的需求。实测N316的控制波形,怠速时为14 V的直线波,轻踩油门踏板时波形无明显变化,但急加速到一定转速时开始变为接地状态的工作波形(图3)。检测至此,说明发动机控制单元的控制信号也是正常的,所以问题又转向N316的执行元件或风门机械机构上来。

图3

图4
尽管之前执行元件自诊断功能时听到N316电磁阀有正常的工作声音,但还是不能排除N316的内部真空控制存在真空损失问题的可能性,于是更换了电磁阀N316,但是故障依旧。此时笔者注意到风板机械操纵杆的位置有些异样,似乎在怠速工况下也有一定程度的拉伸,通过与另一辆正常的车比较证实了这一点,对比的同时也证实了另外一个事实,电磁阀N316上的2根真空管竟然插反了(图4)!这时用户告知之前曾在某修理厂拆洗过喷油器,这应该是真空管插错的原因。正常情况下,与带有过滤装置的空气吸入口垂直的连接口应接入真空膜盒,与空气吸入口平行的连接口应接入真空源。在工作状态时,真空源与真空膜盒导通,同时膜盒与外空气入口切断;在进行完高速功率调整之后的非工作状态,真空膜盒通过单向阀与空气入口连通,以使膜盒内的真空卸压。如果2根真空管接反,电磁阀N316工作时,真空源的真空就会直接抽取用于膜片泄压的空气,膜盒得不到有效真空而使拉杆不动作或动作微小;另一方面,膜盒由于接入真空源接口,在非工作状态时内部相当于一个封闭室,这样在工作状态下室内会有一定的真空残留,因其真空得不到释放自然会使拉杆处在小行程作用状态,而又因为残留真空与电磁阀接通后产生的经过一定卸压的真空度接近,便自然导致加速工况时风板拉杆动作不明显。如此在转速达到相应值需进行进气风板调节时,而进气风板位置却没有相应改变,必然被发动机控制单元作为一个不合理的控制范围信息所识别,在监控转换电磁阀N316无电路故障的前提下,认为进气歧管流道位置传感器出现了工作范围性能不良故障而报出08213故障码。而加速工况因得不到足量的空气也使发动机功率大打折扣,在急加速工况更会因混合气不匹配而引发发动机抖动现象。
故障排除:对调进气板转换电磁阀N316两端真空管至正确位置,清除故障码后路试一切正常。
回顾总结:针对发动机控制单元对进气歧管风板的位置故障识别,笔者又做了2项附加测试。测试1:将真空源的真空直接引入进气风板真空膜片控制盒,起动发动机后,通过VAS5052自诊测试仪同样在发动机电控单元内查询到08213故障码,原理其实是一样的,即发动机控制单元识别到真空风板位置处于功率调整状态与当前的怠速发动机工况不符因此报出故障。测试2:断开进气歧管风门轴连动的传感器G233,实测系统报出的故障码为08212,含义是“进气歧管流道位置传感器/开关电路”。对于进气歧管风板的位置传感器的电路故障(例如断路或短路),电控系统故障识别为直接的电路故障,而不是范围性能;如果控制系统组成部件出现信号超过规定值极限,但和实际工况逻辑分析不符,且系统不能精确地识别出是何原因所导致,系统便会报出性能/范围类的故障码,这一点在维修电控单元系统时会时有发生的。
(谷朝峰)

